Menu

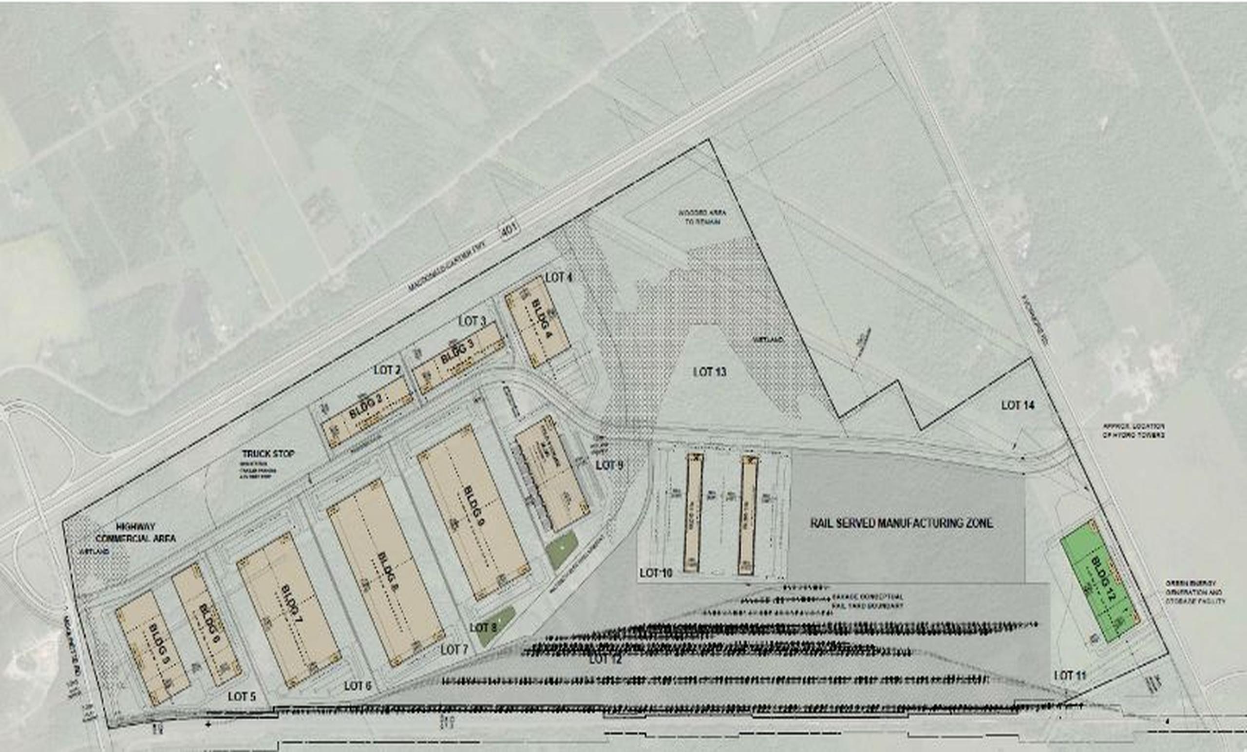
Camino Inland Port at Long Sault is a 680-acre master planned transmodal logistics village to be anchored with a 50 to 100 acre rail yard. It’s bordered to the north by Highway 401, the busiest goods movement corridor for transport trucks in Canada, and to the south by a CN main cargo line, the busiest cargo rail corridor in North America.





